Skip To Content

Fulvia Lot 3

Encinitas, CA 92024
  • $1,998,000
  • STATUS: Active
  • ON SITE: 253 Days
  • ID#: NDP2505418
$1,998,000
  • 0
    BEDS
  • 0.34
    ACRES
  • 0
    BATHS
  • 0
    1/2 BATHS
Neighborhood:
Type:
Vacant Land / Lots
County:

School Ratings & Info

Listing Agent(s): Amy Green of Coastal Premier Properties (858-755-4663)


Description

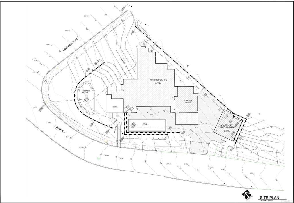
In Coastal Encinitas, this private Leucadia lot sits West of the 5 freeway with potential for ocean views. This ideal location is just a 1/2 mile to the sand at Beacons beach, and a short distance to 101 eateries and shops! Great opportunity to build with the architectural plans already completed or make custom changes to your liking. Renderings show a sophisticated single story with over a 3300 sq.ft. main residence, 3 car garage, plus a detached ADU appox 534 sq,ft,, all perfectly situated on just under 15,000 sq.ft. lot designed to capture the lovely views. No HOA and no Mello-Roos. Great lot ready for development or your fabulous, beach house dream. Construction financing is available....

Monthly Payment Calculator



Based on information from California Regional Multiple Listing Service, Inc. as of 2026-02-12T00:27:55.857. This information is for your personal, non-commercial use and may not be used for any purpose other than to identify prospective properties you may be interested in purchasing. Display of MLS data is deemed reliable but is not guaranteed accurate by the MLS or Go Gabby. Licensed in the State of California, USA.
www.gogabby.com/homes/164504534
Print Image

Fulvia Lot 3 Encinitas, CA 92024

  • Price: $1,998,000
  • Status: Active
  • On Site: 253 Days
  • ID#: NDP2505418
0
Beds
0
Baths
0
½ Baths
0.34
Acres
Neighborhood:
92024 - Encinitas
County:
San Diego
Area:
92024 - Encinitas
Property Description
In Coastal Encinitas, this private Leucadia lot sits West of the 5 freeway with potential for ocean views. This ideal location is just a 1/2 mile to the sand at Beacons beach, and a short distance to 101 eateries and shops! Great opportunity to build with the architectural plans already completed or make custom changes to your liking. Renderings show a sophisticated single story with over a 3300 sq.ft. main residence, 3 car garage, plus a detached ADU appox 534 sq,ft,, all perfectly situated on just under 15,000 sq.ft. lot designed to capture the lovely views. No HOA and no Mello-Roos. Great lot ready for development or your fabulous, beach house dream. Construction financing is available....
Exterior Features

Lot Features 0-1 Unit/Acre Parking Total 0 View OceanPeek-A-Boo View YN Yes

Property Features

Association Fee 0 Association YN No Community Features Urban Land Lease YN No Listing Agreement Exclusive Right To Sell Listing Service Full Service Listing Terms CashConventional Senior Community YN No Special Listing Conditions Standard Zoning R-1:Single Fam-Res



Based on information from California Regional Multiple Listing Service, Inc. as of 2026-02-12T00:27:55.857. This information is for your personal, non-commercial use and may not be used for any purpose other than to identify prospective properties you may be interested in purchasing. Display of MLS data is deemed reliable but is not guaranteed accurate by the MLS or Go Gabby. Licensed in the State of California, USA.
 
https://bt-photos.global.ssl.fastly.net/socal/orig_boomver_2_374518283-2.jpg https://bt-photos.global.ssl.fastly.net/socal/orig_boomver_2_374518283-2.jpg https://bt-photos.global.ssl.fastly.net/socal/orig_boomver_2_374518283-2.jpg
Logo
Go Gabby
1901 S Catalina Ave.
Redondo Beach CA, 90277
Listing Agent(s): Amy Green of Coastal Premier Properties (858-755-4663)