Skip To Content

2328 S Cherry

Fresno, CA 93706
  • $950,000
  • STATUS: Active
  • ON SITE: 109 Days
  • ID#: 25610557
UPDATED: 42 min ago
$950,000
  • 0
    BEDS
  • 4.19
    ACRES
  • 0
    BATHS
  • 0
    1/2 BATHS
Neighborhood:
Type:
Vacant Land / Lots
County:

School Ratings & Info

Listing Agent(s): Mezdan Mota of The Dana Real Estate & Investments Inc. (310-806-1893)


Description

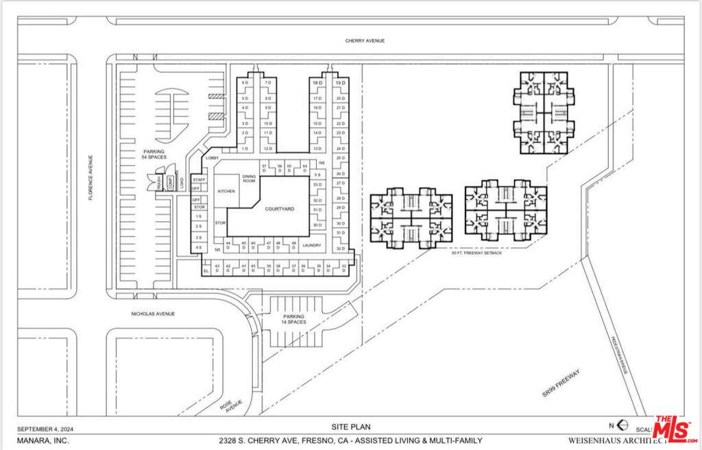
Exceptionally unique opportunity to own and develop a multi-purpose/multi-zone RS-5. +/-4.19 acre parcel of land, perfectly positioned adjacent to the CA-41 and CA-99 offering exceptional visibility for several unique ventures. Nestled right on the border of the vibrant city of Fresno, this property boasts multi residential zoning parcel that's very hard to find. Privacy and security are paramount here, as the property is fully fenced in. We purchased this property in an effort to combat the housing crisis by building a comprehensive assisted living and housing complex to house 250 individual. Whether your vision involves separate housing units, a supportive housing community with over 250 bed, or any future development, this versatile property stands as an ideal canvas for any residential/business project. This piece of land is part of a duplicate project we are currently developing in the cities of Palmdale (LA County) and Bakersfield (Kern County).All three land development projects made possible with similar plans, land use, and size. Please see attached documents. This listing includes complete plans for our 250 bed assisted living facilities and apartments. It cost over 150k to get these plans developed and currently approved in Bakersfield.

Monthly Payment Calculator



Based on information from California Regional Multiple Listing Service, Inc. as of 2026-02-11T16:32:50.24. This information is for your personal, non-commercial use and may not be used for any purpose other than to identify prospective properties you may be interested in purchasing. Display of MLS data is deemed reliable but is not guaranteed accurate by the MLS or Go Gabby. Licensed in the State of California, USA.
www.gogabby.com/homes/169224662
Print Image

2328 S Cherry Fresno, CA 93706

  • Price: $950,000
  • Status: Active
  • On Site: 109 Days
  • Updated: 42 min ago
  • ID#: 25610557
0
Beds
0
Baths
0
½ Baths
4.19
Acres
Neighborhood:
FSNO - Fresno
County:
Fresno
Area:
FSNO - Fresno
Property Description
Exceptionally unique opportunity to own and develop a multi-purpose/multi-zone RS-5. +/-4.19 acre parcel of land, perfectly positioned adjacent to the CA-41 and CA-99 offering exceptional visibility for several unique ventures. Nestled right on the border of the vibrant city of Fresno, this property boasts multi residential zoning parcel that's very hard to find. Privacy and security are paramount here, as the property is fully fenced in. We purchased this property in an effort to combat the housing crisis by building a comprehensive assisted living and housing complex to house 250 individual. Whether your vision involves separate housing units, a supportive housing community with over 250 bed, or any future development, this versatile property stands as an ideal canvas for any residential/business project. This piece of land is part of a duplicate project we are currently developing in the cities of Palmdale (LA County) and Bakersfield (Kern County).All three land development projects made possible with similar plans, land use, and size. Please see attached documents. This listing includes complete plans for our 250 bed assisted living facilities and apartments. It cost over 150k to get these plans developed and currently approved in Bakersfield.
Exterior Features

Parking Total 0 View Landmark View YN Yes

Property Features

Additional Parcels YN No Association YN No Buyer Financing CashPrivate Listing Agreement Seller Reserved Listing Service Full Service New Construction YN No Possession Close Of Escrow Senior Community YN No Special Listing Conditions Standard Water Source Public Zoning RS-5



Based on information from California Regional Multiple Listing Service, Inc. as of 2026-02-11T16:32:50.24. This information is for your personal, non-commercial use and may not be used for any purpose other than to identify prospective properties you may be interested in purchasing. Display of MLS data is deemed reliable but is not guaranteed accurate by the MLS or Go Gabby. Licensed in the State of California, USA.
 
https://bt-photos.global.ssl.fastly.net/socal/orig_boomver_1_402907465-2.jpg https://bt-photos.global.ssl.fastly.net/socal/orig_boomver_1_402907465-2.jpg https://bt-photos.global.ssl.fastly.net/socal/orig_boomver_1_402907465-2.jpg
Logo
Go Gabby
1901 S Catalina Ave.
Redondo Beach CA, 90277
Listing Agent(s): Mezdan Mota of The Dana Real Estate & Investments Inc. (310-806-1893)